Neubau von zwei Doppelhaushälften in Dortmund-Berghofen
Neubau von 2 Doppelhaushälften in Dortmund Berghofen
Willkommen in Ihrem neuen Zuhause!
In der begehrten Lage von Dortmund Berghofen bieten wir Ihnen hochwertige, barrierefreie Doppelhaushälftenen, die keine Wünsche offenlassen.
Diese modernen Häuser zeichnen sich durch eine erstklassige Ausstattung aus.
Genießen Sie den Komfort einer effizienten Heiztechnik und einer angenehmen Fußbodenheizung, die für ein behagliches Wohnklima sorgt.
Alle Fenster sind mit elektrischen Rollläden ausgestattet, die nicht nur für zusätzlichen Komfort, sondern auch für optimale Lichtregulierung und Sicherheit sorgen.
Die Lage könnte nicht besser sein:
Zentral und dennoch ruhig, bietet Ihnen dieser Standort die perfekte Balance zwischen urbanem Leben und entspannender Rückzugsmöglichkeit. Einkaufsmöglichkeiten, öffentliche Verkehrsanbindungen und Freizeitangebote sind in unmittelbarer Nähe und machen das Leben hier besonders angenehm.
Der Preis beinhaltet das Grundstück und das schlüsselfertige Haus nach BlB.
Für weitere Infos zum Grundstück wenden Sie sich bitte an folgende Adresse:
JAN-PHILIPP SCHÄFER
jan-philipp.schaefer@evernest.com
Evernest Dortmund drei Finanz GmbH
Kaiserstraße 64
44135 Dortmund
Planungsansichten

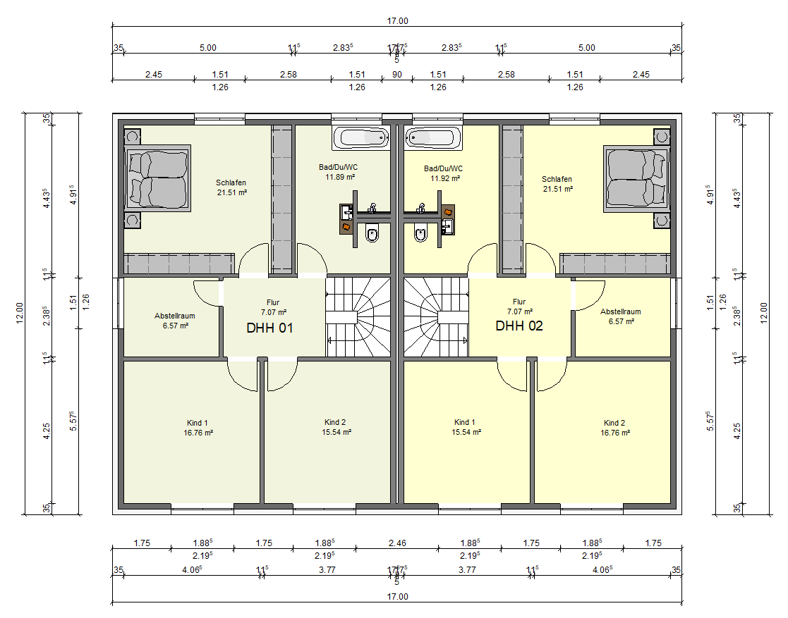
Weitere Ansichten und Grundrisse
Lageplan

Unsere Kaufpreise in der Übersicht
Bitte die Ansicht drehen.| Haus / Wohnung Nr. | Haustyp | Grundstück | Wohnfläche | Kaufpreis | Status |
| Doppelhaushälfte 01 | DHH | 500 | 160 | 680.000 € | Frei |
| Doppelhaushälfte 02 | DHH | 474 | 160 | 670.000 € | Frei |
Der Kaufpreis beinhaltet alle Leistungen aus der Bau- und Leistungsbeschreibung: „Neubau von zwei Doppelhaushälften in Dortmund-Berghofen”.
ETW = Eigentumswohnung / DHH = Doppelhaushälfte / REH = Reihenendhaus / RMH = Reihenmittelhaus / EFH = freistehendes Einfamilienhaus / ZFH = Zweifamilienhaus
Ihre Ansprechpartner



Unser Partner für die Finanzierung Ihres Wohntraums. Jetzt persönliche Baufinanzierung anfragen.